Okna Energetic
Okna na profilach Gealan S 9000 MD
Charakterystyka
Energooszczędność
Energetic
Okna pozwalają domownikom zmniejszyć koszty ogrzewania. Skuteczne zwiększenie oszczędności w domowym budżecie jest możliwe dzięki nowoczesnej konstrukcji okna, która zabezpiecza przed utratą ciepła i umożliwia osiągnięcie doskonałych parametrów izolacyjnych. Spełniają standardy wymagane w budownictwie energooszczędnym oraz pasywnym.
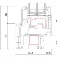
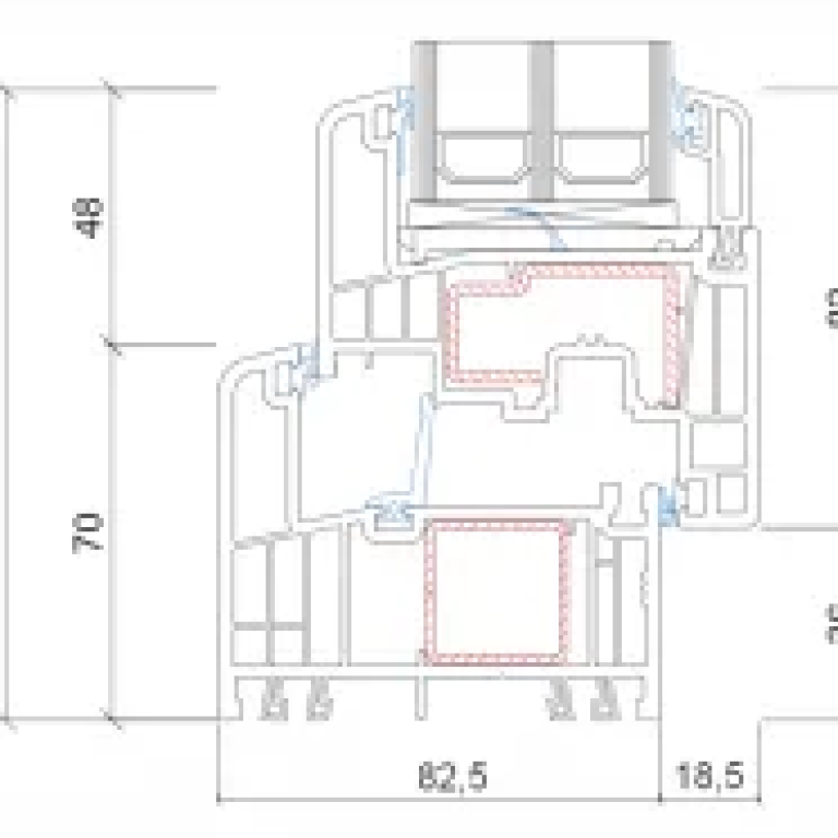
PROFIL
- 6-komorowy profil o szerokości zabudowy 82,5 mm;
- występuje w wersji Classic ( z prostym skrzydłem ) i Round ( z zaokrąglonym skrzydłem );
- produkt dostępny w technologi perfekcyjnego zgrzewu UltraLink, przy zastosowaniu okleiny;
SZKLENIE
- szklenie trzyszybowe do 52 mm;
- ciepłe ramki obniżają ryzyko skraplania się pary wodnej wewnątrz pomieszczenia;
- możliwość dostosowania kolorów ramki międzyszybowej do koloru okna;
OKUCIA
- zaczepy antywłamaniowe na całym obwodzie okna;
- mechanizm stopniowania uchyłu;
- w pozycji uchylonej możliwość czterostopniowej regulacji intensywności przewietrzenia pomieszczenia. Funkcja szczególnie przydatna w kuchniach i łazienkach:
USZCZELKI
- uszczelnienie środkowe i oporowe;
- uszczelki rozmieszczone w trzech płaszczyznach;
- EPDM, materiałnie pęka, odporny na działanie ozonu, wytrzymały na rozciąganie, zrywanie, ściskanie;
Okucia
Okucia ActivPilot:
Standardowo w oknach stosujemy okucia aktivPilot firmy WinkHaus. Poprzez zastosowanie zaczepów oraz elementów ryglujących w kształcie ośmiokątnych grzybków możemy osiągnąć odpowiedni poziom bezpieczeństwa przed włamaniem. Ważne jest, aby zaczepy były przykręcone do stali wzmacniającej ramę. Poziom zabezpieczenia przeciwwyważeniowego zależy od ilości zastosowanych zaczepów. W naszej ofercie, w oknach wszystkie zaczepy są zaczepami bezpiecznymi, co w istotny sposób wpływa na bezpieczeństwo.
Okucie COMFORT - opcjonalnie
Okucie AktivPilot Comfort posiada oprócz funkcji rozwiernej i uchylnej dodatkową funkcję równoległego odstawienia skrzydła od ramy. W tej pozycji pomiędzy skrzydłem a ramą tworzy się ok. 6-milimetrowa szczelina, która umożliwia naturalne przewietrzanie przy bezpiecznie zaryglowanym oknie.
Cyrkulacja powietrza uzyskana dzięki rozszczelnieniu okna eliminuje problem wilgoci, gromadzącej się w pomieszczeniach typu kuchnia, łazienka, pralnia czy w sypialniach. Dzięki optymalnemu wietrzeniu nadmiar wilgoci jest odprowadzany na zewnątrz, co chroni pomieszczenia przed ryzykiem powstawania pleśni czy grzybów, które nie tylko niszczą ściany, ale przede wszystkim szkodzą naszemu zdrowiu.
Okucie dostępne również w wersji z napędem elektrycznym – możliwość odstawienia skrzydła poprzez wciśnięcie odpowiedniej opcji na panelu sterującym lub za pomocą pilota.

Okucia Select - opcjonalnie
AktivPilot Select to okucie uchylno-rozwieralne, które w całości mieszczą się w przestrzeni pod przylgą skrzydła. Dzięki takiej konstrukcji okucia, zawiasy są niewidoczne przy zamkniętym oknie. To bardzo duży walor estetyczny. Pozwala na swobodny dobór kolorów okien, okucia nawierzchniowe ograniczają tę swobodę ze względu na widoczne osłony zawiasów, dostępne w niewielkiej liczbie kolorów. Oprócz walorów estetycznych okno z niewidocznymi zawiasami posiada lepsze parametry izolacyjności. Zawiasy są w całości schowane pomiędzy skrzydłem a ramą okna. Dzięki temu nie powstaje mostek termiczny a na całym obwodzie okna zachowana jest ciągłość uszczelki. ActiwPilot Select ma budowę modułową. Wystarczą dwa dodatkowe elementy, by zwiększyć nośność okucia ze standardowych 100 do 150 kg.

Stopniowanie uchyłu w oknach RU
Pozwala na samodzielne dozowanie wietrzenia uwzględniające porę roku, pogodę, czy poziom wilgotności w poszczególnych pomieszczeniach. Stopniowanie uchyłu jest elementem okucia okiennego RU, tym samym jego montaż nie wymusza ingerencji w profil i zbrojenie. Dodatkowo wyklucza samoistne zatrzaśnięcie uchylonego okna w wyniku przeciągu. Element standardowo oferowany w systemie okuciowym ActivPilot.

Blokada obrotu klamki
Nie pozwala na „niewłaściwy” ruch klamki, tym samym zabezpiecza skrzydło okienne przed „wypadnięciem” z zawiasu górnego oraz przed ewentualnym uszkodzeniem okuć. Zalecane dla osób, którym zależy na prostej, bezstresowej obsłudze okna. Element standardowo oferowany w systemie okuciowym ActivPilot.

Zatrzask balkonowy
Wygodny i estetyczny element umożliwiający przymykanie drzwi balkonowych od strony zewnętrznej domu. Doceniany przez osoby często korzystające z wyjścia na taras. W opcjach kolorystycznych do wszystkich drzwi balkonowych.

Czujniki zamknięcia okna ActivPilot Control - opcjonalnie
ActivPilot control to specjalne zaczepy kontaktowe umieszczone na ramie okna, które współpracują z odpowiednio przygotowanym okuciem na skrzydle. Umożliwiają one monitorowanie pozycji okien, sterowaniem klimatyzacją a także współpracują z instalacją alarmową. Zintegrowane z okuciem czujniki zamknięcia ActivPilot Control są dyskretnie ukryte między skrzydłem a ramą okna.

Klamki Hoppe SECUSTIK
Klamki Secustic są wyposażone w mechanizm blokujący, który stanowi zintegrowany zabezpieczenie bazowe, utrudniające przesunięcie okucia okiennego od zewnątrz. Przy czym element sprzęgający pomiędzy klamką a trzpieniem pełni funkcję swojego rodzaju " mechanicznej diody . Umożliwia on zwykłą obsługę klamki od wewnątrz, ale blokuje ją przy próbie manipulowania nią za pomocą okucia od zewnątrz. Przekręcenie klamki Secustik o 180 stopni z pozycji zamkniętej do uchylnej powoduje słyszalne zatrzaśnięcie samozabezpieczającego się mechanizmu blokowania.

Kolorystyka
Paleta kolorów okien energetic jest bardzo bogata. Poza kolorem białym, najbardziej popularne są okleiny Złoty Dąb, Orzech, Antracyt, Winchester i Mahoń.
W palecie pozastandardowej jest dodatkowo kilkadziesiąt folii drewnopodobnych, jednobarwnych oraz powierzchni Spectral.
